- Woonoppervlakte
- Circa 167 m²
- Perceeloppervlakte
- Circa 230 m²
- Bouwjaar
- Gebouwd in 1900
- Aantal kamers
- 6 kamers (5 slaapkamers)
Uniek object!!
Midden op de prachtige, historische Brink van Roden bevindt zich dit bijzondere (woon)werkpand. Het pand ligt tegenover de monumentale Catharinakerk en grenst aan het uitgestrekte landgoed Mensinge — een unieke combinatie van rust, historie en een centrale ligging, midden in het hart van het dorp.
Woon/werkoppervlakte: 167 m²
Inhoud: 688 m³
Perceeloppervlakte: 230 m²
________________________________________
OMSCHRIJVING
Dit karakteristieke gebouw uit de 19e eeuw maakt deel uit van de voormalige pastorie en wordt momenteel gebruikt als praktijkruimte. In overleg met de gemeente Noordenveld zijn er mogelijkheden om het pand (deels) als woon-/werkruimte te benutten; het bestemmingsplan biedt hiervoor de nodige ruimte.
Het geheel wordt leeg en niet verhuurd opgeleverd.
Meer zien? Bekijk de uitgebreide presentatie op: Brink-3.nl (kopieer en plak dit adres in uw browser).
Liever eerst digitaal rondkijken? Maak gebruik van de 360°-tour onder de foto’s en wandel virtueel door het pand — zo ontdekt u elke ruimte tot in detail!
________________________________________
OMGEVING
De fraaie, monumentale Brink van Roden ligt midden in het gezellige dorpscentrum en grenst direct aan bos en natuur. Het levendige en gastvrije Drentse dorp Roden biedt een breed scala aan winkels, sportfaciliteiten en horecagelegenheden.
Steden als Groningen en Assen zijn binnen respectievelijk 15 en 20 minuten bereikbaar. Daarnaast rijdt er meerdere keren per uur een bus richting Groningen — ideaal voor woon-werkverkeer.
________________________________________
INDELING
Begane grond:
Entree, ruime zeer ruime multifunctionele hal van 43 m² met aansluitend een dames- en herentoilet (waarvan één geschikt voor mindervaliden). Vervolgens drie kantoor-/woonruimten van respectievelijk 12 m², 15 m² en 20 m², alsmede een berging en kastruimte.
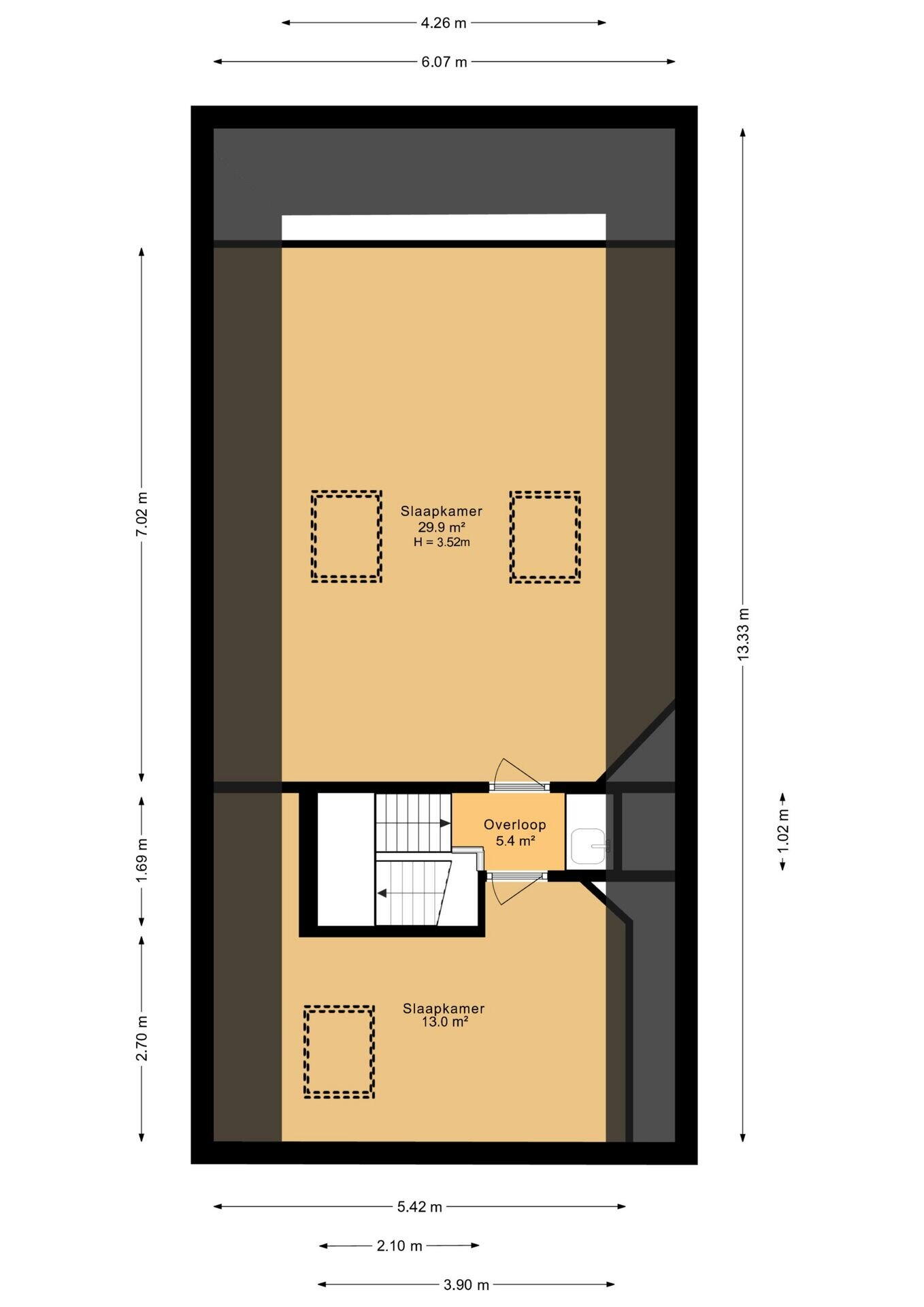
Eerste verdieping:
Twee ruime kantoor-/slaapruimten van 13 m² en 30 m².
Aan de achterzijde van het perceel bevindt zich een buitenruimte van circa 25 m², terwijl aan de voorzijde een lange stoep/entree tot aan de openbare weg loopt.
Op de Brink zijn ruim voldoende parkeergelegenheden aanwezig.
Het pand is uitermate geschikt voor:
• Kantoorruimte
• Praktijkruimte
• Detailhandel
• En eventueel een combinatie met wonen
________________________________________
BIJZONDERHEDEN
• Nieuw, volledig geïsoleerd dak met Unidek-isolatieplaten
• Nieuwe dakpannen en panlatten
• Nieuwe zinken goten en afvoeren
• 3-fasen stroom aanwezig
• Fraaie hoge plafonds
• Centrale verwarming d.m.v. Atag HR cv ketel
• Muren geïsoleerd d.m.v. voorzetwanden
• Geheel elektrische installatie is vernieuwd Lees de volledige omschrijving
Overdracht
- Vraagprijs
- € 395.000 k.k.
- Status
- Verkocht
Bouw
- Object type
- Eengezinswoning, geschakelde woning
- Soort bouw
- Bestaande bouw
- Bouwjaar
- 1900
- Toegankelijkheid
- Toegankelijk voor mensen met een beperking en toegankelijk voor ouderen
- Soort dak
- Samengesteld dak bedekt met pannen
Oppervlakte en inhoud
- Woonoppervlakte
- 167 m²
- Perceeloppervlakte
- 230 m²
- Inhoud
- 688 m³
Indeling
- Aantal kamers
- 6 kamers (5 slaapkamers)
- Aantal badkamers
- 1 apart toilet
- Aantal woonlagen
- 2 woonlagen
- Voorzieningen
- Dakraam
Energie
- Energielabel
- B
- Energielabel registratie
- 06-11-2025
- Isolatie
- Dakisolatie en muurisolatie
- Verwarming
- Cv-ketel
- Warm water
- Cv-ketel
- Cv ketel
- Attag (gas gestookt combiketel, eigendom)
Buitenruimte
- Ligging
- In bosrijke omgeving en in centrum
- Tuin
- Achtertuin
- Afmetingen achtertuin
- 25 m² (3,50 meter diep en 7,00 meter breed)
Parkeergelegenheid
- Soort parkeergelegenheid
- Openbaar parkeren
Energieverbruik in Roden
Energielabel deze woning
Energielabel B
Publicatie energielabel: 06-11-2025
Stroomverbruik per jaar
(Gemiddelde tussenwoning in Roden)
Gasverbruik per jaar
(Gemiddelde tussenwoning in Roden)
* Cijfers zijn afkomstig van het CBS en bedoeld als indicatie en kunnen verschillen voor deze woning
Indicatie hypotheeklasten
Eigen inleg:
Spaargeld / overwaarde
Rente:
Laagste 10-jaars rente
Laagste 10-jaars rente
2,78% - Centraal Beheer - NHG
3,04% - Centraal Beheer - 80%
Laagste 20-jaars rente
3,29% - Centraal Beheer - NHG
3,52% - Centraal Beheer - 80%
Laagste 30-jaars rente
3,41% - Centraal Beheer - NHG
3,7% - Argenta - 80%
Hypotheek:
Bruto maandlasten: € 0 p/m
Netto maandlasten: € 0 p/m
Hoe berekenen we dit?
Het rentepercentage is gebaseerd op de laagste 10 jaars vaste rente voor één hypotheekdeel. De vermelde rente (2.78% met NHG) is gecontroleerd op 27-04-2026. Deze berekening is gebaseerd op een annuïteitenhypotheek die volledig wordt afgelost, waarbij de maandlasten gedurende de gehele looptijd gelijk blijven. De werkelijke rente en netto maandlasten kunnen variëren, afhankelijk van uw persoonlijke situatie en de hypotheekverstrekker. Raadpleeg een financieel adviseur voor een nauwkeurige berekening en advies. Aan deze berekening kunnen geen rechten worden ontleend; het dient enkel als indicatie.
Documentatie
Kadastrale kaart
Leefomgeving
BAG uittreksel
Plattegronden PDF
Brochure
Bezoek onze website
Bezichtiging
Bod uitbrengen
Waardebepaling
Zoekopdracht
Alles downloaden
Zonnegrenzen bekijken
Op de kaart
Inwoners in Roden
Cijfers voor postcodegebied 9301
- Totaal aantal inwoners
- 11310 inwoners
- Mannen
- 48%
- Vrouwen
- 52%
Inwoners in Roden
Cijfers voor postcodegebied 9301
- tot 15 jaar
- 14%
- 15 tot 25 jaar
- 9%
- 25 tot 35 jaar
- 18%
- 45 tot 65 jaar
- 26%
- 65 en ouder
- 34%
Huishoudens in Roden
Cijfers voor postcodegebied 9301
- Eenpersoons zonder kinderen
- 35%
- Meerpersoons zonder kinderen
- 37%
- Huishoudens zonder kinderen
- 72%
Huishoudens in Roden
Cijfers voor postcodegebied 9301
- Huishoudens met één kind
- 7%
- Huishoudens met meerdere kinderen
- 21%
- Huishoudens met kinderen
- 28%
Woningen in Roden
Cijfers voor postcodegebied 9301
- Woningen voor 1945
- 3%
- Woningen tussen 1945 en 1965
- 15%
- Woningen tussen 1965 en 1975
- 44%
- Woningen tussen 1975 en 1985
- 14%
- Woningen tussen 1985 en 1995
- 10%
Woningen in Roden
Cijfers voor postcodegebied 9301
- Woningen tussen 1995 en 2005
- 8%
- Woningen tussen 2005 en 2015
- 4%
- Woningen na 2015
- 2%
- Huurwoningen
- 40%
- Koopwoningen
- 60%
Overige in Roden
Cijfers voor postcodegebied 9301
- Gemiddelde WOZ waarde
- € 217.000,-
- Personen onder de 65 met uitkering
- 8%
Overige in Roden
Cijfers voor postcodegebied 9301
- Adressen per km²
- 1126
- Stedelijkheid (schaal 1 op 5)
- 60%
Welkom bij Peter’s Makelaardij
Uw betrouwbare partner in onroerend goed in Roden en omstreken. Sinds 1986 is ons kantoor gevestigd aan de Brink 37 in Roden, waar onze ervaring en kennis van de lokale markt samenkomen om u optimaal te begeleiden bij het kopen, verkopen of huren van een woning.
Onder leiding van Peter Brandsma, die in 1995 het stokje overnam van zijn vader Cor, hebben wij een rijke historie opgebouwd in de makelaardij. Met meer dan 35 jaar ervaring is Peter niet alleen een deskundige makelaar, maar ook een betrokken adviseur die zich volledig inzet voor zijn klanten. Hij staat bekend om zijn no-nonsense aanpak en zijn vermogen om elke woning effectief in de markt te zetten voor de best haalbare prijs.
Bij Peter’s Makelaardij geloven we dat maatwerk essentieel is. Elke woning is uniek en vergt een eigen strategie. Daarom begint ons proces altijd met een vrijblijvend kennismakingsgesprek om uw wensen in kaart te brengen. Ons team, bestaande uit ervaren professionals zoals Germa Bijholt en Gerben de Vries, staat klaar om zowel bij de verkoop als bij de aankoop van uw woning te ondersteunen.
Onze klanten waarderen ons werk enorm, zoals blijkt uit een gemiddelde beoordeling van 9.2 uit 10 op Funda en Google. Wij zijn er trots op dat cliënten ons kenmerken als deskundig, vriendelijk en altijd bereikbaar. Wilt u samen met ons aan uw woonwensen werken? Neem gerust contact op voor meer informatie of schrijf u in om op de hoogte te blijven van ons nieuwste aanbod. Peter’s Makelaardij - uw makelaar in Roden!
Nieuwste reviews
-
Stinsenweg 29
Heldere en duidelijke afspraken gemaakt met de makelaar en zijn medewerkers. Goede communicatie. Naar mijn mening hele goede en fijne samenw...
-
Roer 246
Peter en zijn collega’s nemen alles uit handen en gaan er volledig voor.Geen nonsens gewoon handelen.Super.
-
Auwemalaan 1 3
Het contact met Peter en zijn collega’s hebben we als zeer prettig ervaren. Nuchter advies, korte lijnen en duidelijke communicatie. Wij zou...